Gotycko-renesansowy dwór w Ślęzie–Lasowie rozwinął się na kopcu otoczonym fosą, gdzie najpierw funkcjonowała zabudowa szachulcowa, a w 2 poł. XIV wieku wzniesiono murowaną, ceglaną wieżę mieszkalną. Obiekt przebudowano na przełomie XV i XVI wieku oraz gruntownie przekształcono w pierwszych dziesięcioleciach XVII wieku, rozbudowując część mieszkalną i modernizując wnętrza.
| Lokalizacja | woj. dolnośląskie, pow. wrocławski, gm. Kobierzyce |
|---|---|
| Współrzędne | 51.0344454, 16.9858583 |
| Obszar AZP | 81-28 |
| Chronologia | późne średniowiecze, nowożytność |
| Autorzy | Dominik Nowakowski |
| Data udostępnienia | 26.12.2025 |

Jak cytować?
Opis
Przynależność administracyjna i toponomastyka
- Współczesna: gmina Kobierzyce, pow. wrocławski, woj. dolnośląskie.
- Historyczne jednostki administracyjne: księstwo wrocławskie.
- Nazwy historyczne: Ślęza–Lasowo (niem. Lohe)
Kontekst przestrzenny, rozplanowanie, stan zachowania obiektu
Na płaskim i suchym terenie, ograniczonym od zachodu i północy doliną Ślęzy, w centralnej części wsi, na północ od zabudowań dawnego folwarku.
Wybór źródeł do dziejów miejscowości i dóbr ziemskich
- 1300 – folwark wrocławskiego wójta (allodium advocati de Wratislavia) posiadał archidiakon legnicki Arnold (CDS XIV, B, 50)
- 1311 – książęta Bolesław i Henryk opawscy, jako panowie Wrocławia, sprzedali za 750 grzywien mieszczanom Janowi von Mollensdorf i Maciejowi von Mühlheim allodium nad rzeką La, które wcześniej należało do wójta wrocławskiego Henryka, później do Fryczka von Waldau; rok później sprzedaż tę potwierdził Henryk VI wrocławski (RS 3187, 3324)
- 1336 – Maciej von Mühlheim zastawił folwark La mieszczaninowi Albertowi z Kątów (RS 5679)
- 1338 – Matylda, żona mieszczanina Waldemara ze Świdnicy, posiadała ½ allodium La, którą otrzymała od Piotra Rutheni (RS 6044, 6063)
- 1341 – Natania córka Piotra Rutheni i jej córka Matylda sprzedały mieszczaninowi Tylonowi z Legnicy allodium La, położone koło allodium Macieja Starszego Mühlheima nad rzeką La, z wszelkimi przynależnościami, rowami, drzewami, drogami, płotami i mokradłami (RS 6556)
- 1342 – mieszczanin Henryk Ekhard z Głogowa zapisał żonie Jucie jako oprawę, a następnie swoim dzieciom allodium La z młynem, polami, łąkami, wodami (RS 6911)
- 1345 – mieszczanin Tylon Schreiber z Legnicy sprzedał Janowi z Nysy i jego dziedzicom swój folwark Loh, położony przy folwarku Macieja Mühlheima Starszego nad rzeką, zwaną również Lo (RF, I, 207, 211)
- 1347 – potwierdzenie, że Mikołaj z Nysy posiada allodium Loo ze wszystkimi prawami, zwolnione z wszelkich służb, tak jak wcześniej uzyskał je od książąt Henryka i Bolesława wójt wrocławski Henryk, a następnie Jan von Mollensdorf i Maciej von Mühlheim oraz Juta, wdowa po Ekhardzie (RF, I, 210)
- 1348 – Juta, wdowa po Henryku Ekhardzie z Głogowa, wraz z dziećmi sprzedała Mikołajowi z Nysy folwark La, położony nad rzeką La (RF, I, 210)
- 1353 – folwark Laa z 22 łanami (RWN, s. 107)
- 1359–1371 – mieszczanin Mikołaj z Krakowa posiadał allodium Laa, które wcześniej należało do wójta Henryka (RF, I, 209; RŚl, IV, nr 474; Pfeiffer 1929, s. 108)
- 1372 – Mikołaj z Krakowa oświadczył przed sądem, że posiada majątek Laa z wszelkimi prawami i przywilejami, z którego w 1374 r. ⅓ przekazał Kasprowi i Annie, dzieciom Jana z Krakowa (RF, I, 210)
- 1375 – Gertruda, córka Mikołaja z Krakowa, przekazała mężowi Hermanowi von Borschnitz całą swoją ojcowiznę na dobrach Law (RF, I, 210)
- 1379 – Kasper, syn Jana z Krakowa, zrezygnował na rzecz Mikołaja z Krakowa z wszelkich praw do folwarku Laa (RF, I, 210)
- 1383 – Mikołaj z Krakowa sprzedał mieszczaninowi Konradowi, wójtowi Jawora, swój folwark Laa z karczmą i młynem (RF, I, 210)
- 1386 – mieszczanin Paweł Stengel posiadał dobra Laa i Rusin, położone obok siebie nad rzeką Laa (RF, I, 211)
- 1399 – kanonik głogowski Mikołaj Stengel przekazał swojemu bratu, mieszczaninowi Zygmuntowi, i jego rodzeństwu całą ojcowiznę na folwarku Laa z 5 łanami (RF, I, 211)
- 1409 – Paweł Stengel zrezygnował na rzecz mieszczanina Pawła Dumlose ze wsi i folwarku Loo, z dworem i siedzibą (Hofe und Gesäße) oraz młynem (RF, I, 211)
- 1419 – dobra należały do Jana i Wacława Banków (RF, I, 211)
- 1470 – Jadwiga, żona Jana Banka, zrezygnowała na rzecz Jana Rindfleischa ze wsi Laa z siedzibą i dworem (Gesäße und Hofe) oraz dwoma młynami, zw. Luhmühle i Creuzmühle (RF, I, 211)
- 1479 – dobra posiadał Jan Esslinger, szwagier Jana Rindfleischa (RF, I, 211)
- 1548–1561 – dobra posiadała Urszula, wdowa po Mikołaju Esslingerze (APWr., AmWr., C 22, f. 22v; RF, I, 211)
- 1568 – bracia Mikołaj, Leonard i Tomasz Esslingerowie dokonali podziału majątku (RF, I, 211)
- 1570 – dobra Lohe i młyn Creuzmühl posiadał Henryk Vogt (RF, I, 211)
Historia budowlana obiektu
Kontekst wcześniejszy: kopiec, fosa i zabudowa szachulcowa (XIV w.)
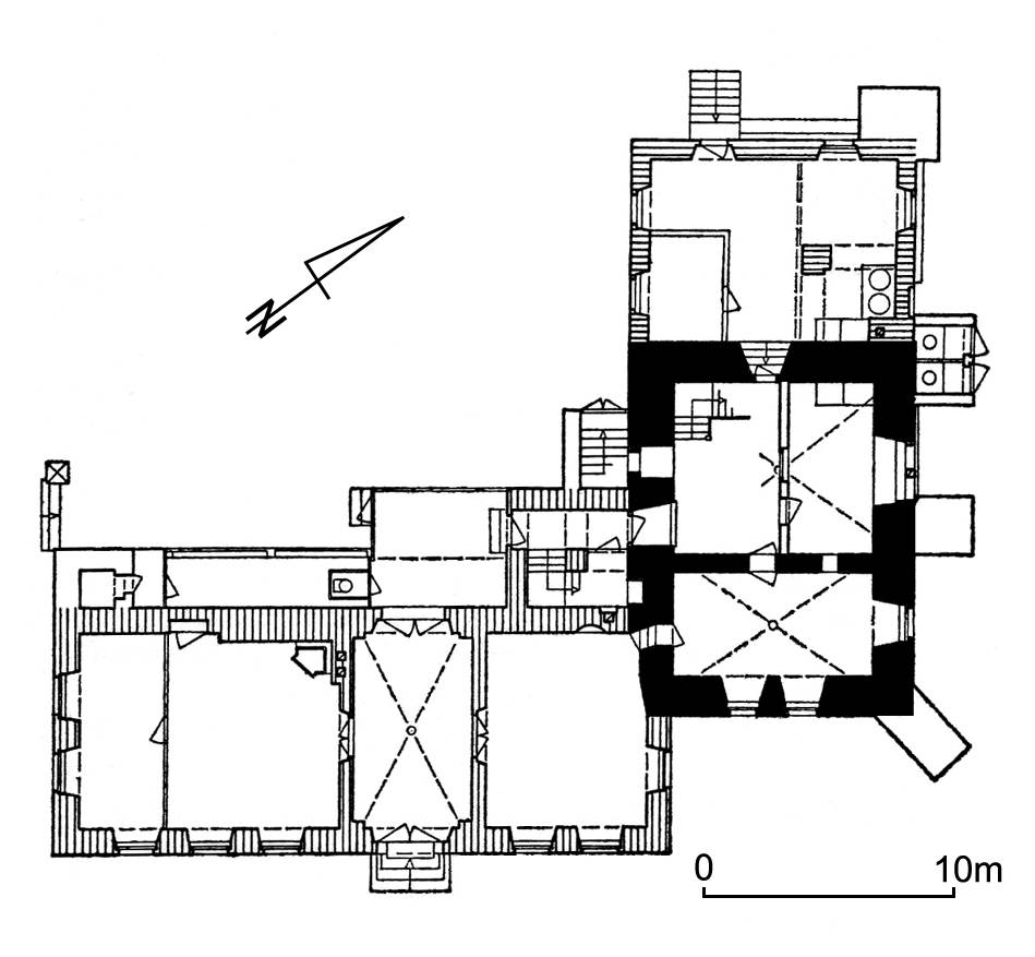
Badania wykopaliskowe wykazały, że wieża stała we wschodnim narożniku czworobocznego kopca otoczonego fosą. Wcześniej na kopcu funkcjonowała także zabudowa szachulcowa, stratygraficznie starsza niż murowana wieża. Relikty spalonego budynku, w postaci belki podwalinowej, kilku dranic podłogi i gruzu fachwerkowego, odkryto w sondażu I/03, założonym w odległości ok. 8 m na południowy zachód od południowo-zachodniego narożnika wieży, oraz w położonym w niewielkiej odległości na północny zachód od niego sondażu VI/03. Z kolei w sondażu IV/03, założonym ok. 30 m na zachód od renesansowego domu, odsłonięto krawędź wewnętrzną fosy, wzmocnioną pionowo wbitymi kołkami i trzema wieńcami dranic ułożonych na sztorc. Pozostałości analogicznego górnego wieńca odsłonięto także w sondażu VI/03. Podczas badań przeprowadzonych w 2005 r., w obrębie barokowej kuchni dostawionej od północnego zachodu do wieży (wykop II/05), odsłonięto średniowieczną studnię, której cembrowinę wykonano z kamieni granitowych spajanych gliną. Z kolei w wykopie III/05, założonym w piwnicy renesansowego domu, natrafiono na krawędź wewnętrzną południowo-wschodniego odcinka fosy. Konstrukcje drewniane, w postaci kilku pionowo wbitych słupów stabilizujących dwie masywne belki ułożone równolegle do siebie w odległości ok. 1 m, odsłonięto podczas nadzoru archeologicznego w 2014 r. Według planu inwestycji zamieszczonego w sprawozdaniu odkryto je ok. 20 m na zachód od renesansowego domu
Faza 1. Najstarszy murowany element: wieża mieszkalna (2 poł. XIV–XV w.)
Gotycko-renesansowy dwór, którego najstarszym murowanym elementem jest ceglana wieża o wymiarach 10 × 13 m, datowana na 2 poł. XIV–XV w. Pierwotnie był to obiekt dwupiętrowy, podpiwniczony, o jednoprzestrzennych kondygnacjach krytych stropami. Piwnicę wieży zbudowano z kamienia, a jej otwory oraz wyższe kondygnacje wykonano z cegły w wątku gotyckim. Trzy naroża wieży wzmacniały skarpy, w tym jedna przekątna i dwie na przedłużeniu ścian. Na poziomie parteru, w ścianie zachodniej, znajdowało się ostrołucznie przekryte wejście, przy którym zachował się otwór zasuwy ryglującej drzwi. Na poziomie piętra, w ścianie wschodniej, znajdowały się dwa otwory okienne z siedziskami oraz otwór po wykuszu latrynowym. Analogiczne dwa okna i wnęka występowały w ścianie zachodniej, natomiast w północno-zachodnim narożniku sali znajdował się kominek, zastąpiony przez nowy z początku XVII w. W pobliżu kominka, w ścianie północnej, znajdowała się wnęka, a dalej okno, ustawione w osi z oknem położonym na poziomie parteru. Na poziomie najsłabiej zachowanej drugiej kondygnacji otwór okienny znajdował się w ścianie wschodniej. Odsadzka zewnętrzna i kilka otworów przelotowych sugerują, że na tym poziomie pierwotnie mógł funkcjonować ganek hurdycjowy.
Faza 2. Nadbudowa i modernizacja wieży (koniec XV – 1 poł. XVI w.)
W kolejnej fazie użytkowej, datowanej na koniec XV i 1 poł. XVI w., przebudowie uległa wieża, którą podwyższono o trzecie piętro, zwieńczone attyką i przeznaczone do obrony, z otworami strzelniczymi we wnękach. Na poziomie drugiego piętra utworzono kolejną izbę mieszkalną oraz wybito nowe otwory okienne i drzwiowe, a także wykonano przewód kominowy i latrynę. W tym czasie wnętrze wieży otynkowano, natomiast na zewnątrz tynkiem pokryto attykę i opaski otworów okiennych.
Faza 3. Gruntowna przebudowa zespołu (początek XVII w.)
Obiekt uległ gruntownej przebudowie w pierwszych dziesięcioleciach XVII w., kiedy do ściany południowo-zachodniej dostawiono klatkę schodową, a do narożnika południowego prostokątny, dwupiętrowy budynek mieszkalny. Przebudowie uległo także wnętrze wieży: parter podzielono na dwa pomieszczenia, na nowo przekryto wszystkie kondygnacje, część otworów zamurowano, a pozostawione wtórnie przekształcono i osadzono w nich renesansowe piaskowcowe opaski. Prawdopodobnie w tym czasie wieżę otynkowano od zewnątrz.
Faza 4. Rozbudowa barokowa i znaleziska ruchome
Najmłodszym barokowym elementem zespołu była ceglana kuchnia dostawiona do wieży od północnego zachodu. Podczas badań wykopaliskowych pozyskano fragmenty średniowiecznej i wczesnonowożytnej ceramiki naczyniowej i kafli piecowych, silnie skorodowane przedmioty żelazne (w tym gwoździe), fragment szklanego pucharu fletowego oraz kości zwierzęce.
Chronologia: dwór na kopcu z zabudowa szachulcowa datowany na XIV w., w 2 poł. XIV w. w jego narożniku zbudowano ceglana wieżę mieszkalna, obiekt przebudowano na przełomie XV i XVI w., a następnie na początku XVII w.
Literatura
Konkretne wzmianki (wybór): CDS XIV, B, 50; RS 3187, 3324, 5679, 6044, 6063, 6556, 6911; RF I, 207, 209–211; RWN, s. 107; RŚl IV, nr 474; Pfeiffer 1929, s. 108; APWr., AmWr., C 22, f. 22v; Lutsch 1889, s. 443–444; Probst 1938, s. 103; Sieber 1962, s. 88–89; Degen 1965, s. 161–163; Weczerka 1977, s. 300; Pilch 1978, s. 131, 262; Pawłowski 1978, s. 350–351; Grundmann 1982, s. 137; Katalog Zabytków Sztuki 1991, s. 135–137; Chorowska 2003, s. 147; Eysymontt 2010, s. 343; Nowakowski 2023, s. 262–266.
APW WSPŚ lub APWr = Archiwum Państwowe we Wrocławiu, Wydział Samorządowy Prowincji Śląskiej Technical Report
0000.
Wstępne sprawozdanie z badań archeologiczno-architektonicznych prowadzonych na terenie dworu renesansowego w Ślęzy, gm. Kobierzyce. Sezon II – 2004 Technical Report
WUOZ Wrocław Wrocław, 2005, (archiwum WUOZ Wrocław).
Ślęza – dwór. Wyniki badań architektonicznych przeprowadzonych w 2003 roku Technical Report
WUOZ Wrocław, 2004, (archiwum WUOZ).
Rezydencje średniowieczne na Śląsku. Zamki, pałace, wieże mieszkalne Book
Wrocław, 2003.
Wyniki badań archeologiczno-architektonicznych w Ślęzy–Lasowej, gm. Kobierzyce Technical Report
WUOZ Wrocław Wrocław, 2004, (archiwum WUOZ Wrocław).
Die Bau- und Kunstdenkmäler des Landkreises Breslau, Bau- und Kunstdenkmäler des deutschen Ostens, R. C: Schlesien, Bd. I Book
Frankfurt a. Main, 1965.
Architektura renesansowych dworów na dolnym Śląsku Book
Wrocław, 2010.
Burgen, Schlösser und Gutshäuser in Schlesien, Bd. 1. Die mittelalterlichen Burgruinen und Wohntürme Book
Frankfurt am Main, 1982.
KZS IV/2 = Sobótka, Kąty Wrocławskie i okolice. Katalog zabytków sztuki w Polsce, tom IV, województwo wrocławskie, zeszyt 2 Book
Warszawa, 1991.
Verzeichnis der Kunstdenkmäler der Provinz Schlesien. Bd. II: Kunstdenkmäler des Regierungsbezirks Breslau Book
Breslau, 1889.
Wstępne sprawozdanie z nadzoru archeologicznego przeprowadzonego we Wrocławiu–Leśnicy przy budowie przyłącza gazowego do Domu Kultury Technical Report
Archiwum IAE PAN Wrocław Wrocław, 1995.
Zamki i dwory księstwa wrocławskiego od XIII do XVI wieku Book
Wrocław, 2023.
Grody stożkowate, ostrosłupowe i wieże mieszkalno-obronne na Śląsku w średniowieczu PhD Thesis
KHASiT Politechniki Wrocławskiej, 1978.
Paprotzkius Enucleatus Oder Kern und Auszug Aus dem so genannten Mährischen Geschichichts-Spiegel Bartholomaei Paprotzkii Book
Breslau und Leipzig, 1730.
Zabytki architektury Dolnego Śląska Book
Wrocław, 1978.
Frühdeutsche Wohntürme Journal Article
In: Altschlesische Blätter, no. 3, pp. 103, 1938.
Studium historyczno-architektoniczne wieży mieszkalnej w Biestrzykowie, pałacu Ślęza-Lasowo i zamku w Jelczu Technical Report
KHASiT Politechniki Wrocławskiej Wrocław, 1979, (archiwum KHASiT Politechniki Wrocławskiej).
Burgen und Schlosser in Schlesien Book
Frankfurt a/Main, 1962.
CDS XIV = Codex Diplomaticus Silesiae, Liber Fundationis Episcopatus Vratislaviensis, Bd. XIV Collection
Liber Fundationis Episcopatus Vratislaviensis, Breslau, 1889, (także skrótowo jako LfeV; Lf; LF).
CDS XVI = Codex Diplomaticus Silesiae, Regesten zur Schlesischen Geschichte, Bd. XVI: 1301-1315 (RS nr 2616-3542) Collection
Breslau, 1892, (używany również skrót 'RS' lub 'RSIV').
CDS XXX = Codex Diplomaticus Silesiae, Regesten zur schlesischen Geschichte 1338-1342, Bd. XXX (RS nr 6021-6988) Collection
Breslau, 1925.
RWN = Registrum villarum, allodiarum et jurium ducatus Wratislaviensis et districtus Nampslaviensis Journal Article
In: Übersicht der Arbeiten und Veränderungen der Schlesischen Gesellschaft für Vaterländische Kultur im Jahre 1842, pp. 60-141, 1843.
Handbuch der Historischen Stätten – Schlesien Book
Stuttgart, 1977.
RF = Repertorium Frobenianum (Repertorium Investiturarum in Praediis Ducatus Vratislaviensis, quae in Libris eiusdem Cancellariae continentur), t. 1-4 Collection
0000, (APWr., Akta miasta Wrocławia, sygn. C 24/I–IV).
RŚl IV = Regesty śląskie. T. IV, 1358-1359 Collection
Wrocław-Warszawa, 1992.
Ilustracje



















