Pałac w Marszowicach jest obiektem wielofazowym, którego obecna forma powstała w wyniku nowożytnych przebudów i adaptacji starszej siedziby rycerskiej. Najstarszą częścią założenia jest ceglana wieża mieszkalna z XIII wieku, zachowana w północno-wschodniej części pałacu. Wzniesiono ją na planie prostokąta, z masywnymi murami z cegły w układzie wendyjskim; późniejsze przekształcenia, widoczne w formie wtórnych otworów i przemurowań, wiązać należy z przebudową w XVII wieku.
| Lokalizacja | woj. dolnośląskie, pow. oławski, gmina Oława |
|---|---|
| Współrzędne | 50.9286504, 17.210827 |
| Obszar AZP | 83-30 |
| Chronologia | pełne średniowiecze |
| Autorzy | Dominik Nowakowski |
| Data udostępnienia | 25.12.2025 |

Jak cytować?
Opis
Przynależność administracyjna i toponomastyka
- Współczesna: gmina Oława, pow. oławski, woj. dolnośląskie.
- Historyczne jednostki administracyjne: księstwo wrocławskie; księstwo legnicko-brzeskie.
- Nazwy historyczne: Marszowice (niem. Marschwitz), zapisy: 1253 – Marsonici i in.
Kontekst przestrzenny, rozplanowanie, stan zachowania obiektu
Na płaskim i suchym terenie, w północnej części wsi, na południe dawnego folwarku. Relikty wieży mieszkalnej zachowały się w obrębie północno-wschodniej części obecnego pałacu, a czytelne elementy najstarszej struktury obejmują m.in. fragmenty murów oraz układ piwnicy.
Wybór źródeł do dziejów miejscowości i dóbr ziemskich
- 1253 – wieś Marsonici (SUb, II, nr 89)
- 1266 – w falsyfikacie dokumentu na liście świadków wymienieni bracia Eberhard i Szymon (Gall) de Marszowicz (SUb, III, nr 588)
- 1298 – w falsyfikacie dokumentu na liście świadków wymieniony Henryk de Marschow (SUb, VI, nr 470)
- 1306–1315 – rycerz Henryk von Marschowitz i jego syn, kanonik Szymon (RS 2878, 2905, 2986, 3078, 3126, 3396, 3403, 3404, 3438, 3475)
- 1322 – rycerz Henryk (Hanczko) z Marszowic oraz jego synowie Bronisław, Mroczko, Bogusz i Henko (RS 4208)
- 1329–1337 – Mroczko z Marszowic (RS 4800, 5618, 5876)
- 1329–1353 – Henryk z Marszowic (RS 4818, 6496; RŚl, II, nr 923)
- 1329 – Gerczlaus z Marszowic, brat Henryka (RS 4818)
- 1335 – poświadczony kościół (RS 5409, 5507)
- 1336–1359 – Bogusz z Marszowic, brat Mroczka (RS 5618; RŚl, IV, nr 443)
- 1357 – Czenke von Prittwitz, za zgodą matki Agnieszki, sprzedał Jaraczowi z Pogorzeli folwark w Marszowicach z 7 łanami, domem mieszkalnym i przynależnościami stanowiącymi oprawę wdowią matki (RŚl, III, nr 414)
- 1359 – Ludwik I brzeski potwierdził dokument sprzedaży folwarku w Marszowicach (RŚl, IV, nr 465)
- 1360 – Czenke von Prittwitz, za zgodą matki Agnieszki i w imieniu braci, sprzedał Jaraczowi z Pogorzeli 9 łanów czynszowych w Marszowicach z sołectwem, prawem patronatu nad kościołem, karczmą i dochodami (RŚl, V, nr 220)
- 1448 – dobra czynszowe we wsi posiadał Mikołaj Gersdorf (APWr., AmW, sygn. B 89,4, fol. 37)
- 1472 – Henryk z Pogorzeli, dziedziczny pan Marszowic (APWr., AmW, sygn. B 89,4, fol. 106)
- 1478 – Ilza, wdowa po Jaraczu z Pogorzeli, zrzekła się wraz z synem na rzecz Mikołaja Schenke von Grunaw z oprawy wdowiej w Marszowicach (APWr., AmW, sygn. B 89,4, fol. 111v)
- 1478 – starosta oławski Mikołaj Schenke zapisał żonie Małgorzacie jako oprawę wdowią wszystkie dobra w Marszowicach (APWr., AmW, sygn. B 89,4, fol. 112)
- 1479 – dobra i wieś jako posiadłości Mikołaja Schenke (APWr., AmW, sygn. B 89,4, fol. 113)
- 1504–1510 – świadkował Mikołaj Schenke z Marszowic (APWr., AmW, sygn. B 89,4, fol. 122v, 127v, 128v, 144v, 158v, 159v, 167)
Historia budowlana obiektu
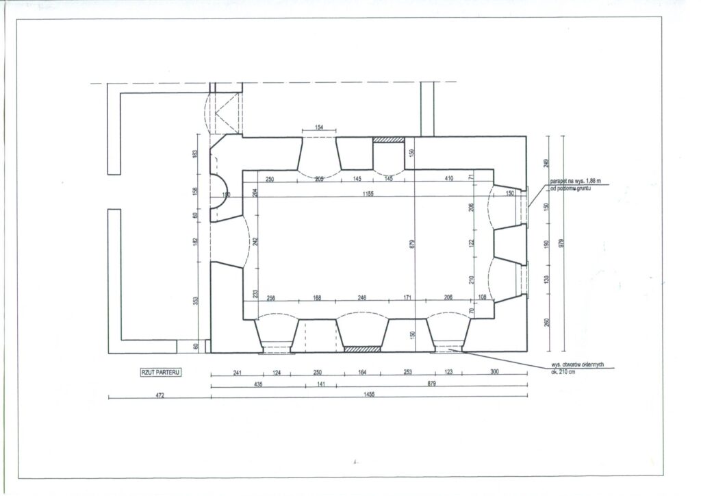
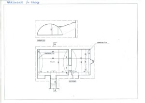
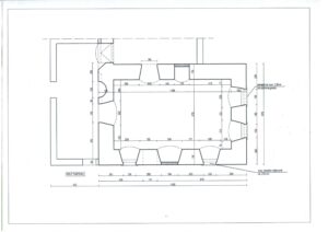
Badania architektoniczne obiektu w Marszowicach wykazały, że w obrębie północno-wschodniej części obecnego pałacu zachowały się dwie kondygnacje wieży mieszkalnej, zbudowanej na planie prostokąta o wymiarach 14,55 × 9,97 m i grubości ścian ok. 1,5 m. Do jej wzniesienia użyto cegieł układanych w wątku wendyjskim, spajanych szaro-kremową zaprawą z wyraźnie widocznymi grudkami wapna. W północno-wschodniej partii murów na licu widoczne są ślady wtórnego przepalenia, być może związane z pożarem; ponadto ściany noszą liczne ślady napraw w postaci łat z ociosanych, nieregularnych bloków granitu, a także z cegieł gotyckich i nowożytnych cegieł maszynowych.
Zachowane w reliktach wieży otwory okienne i drzwiowe mają charakter wtórny i zostały najpewniej wykonane w XVII wieku. Z najstarszą fazą obiektu wiązać można fragment łuku widoczny na północno-wschodniej ścianie, na wysokości pierwszego piętra, interpretowany jako relikt otworu okiennego lub wykusza latrynowego. W tej samej ścianie, na poziomie gruntu, znajduje się wejście do piwnicy, stanowiącej prostokątne pomieszczenie o długości 11,7 m, szerokości 5,65 m i wysokości 2,4 m. Piwnica przekryta jest sklepieniem kolebkowym schodzącym do poziomu podłogi i podzielona niesymetrycznie na dwa pomieszczenia, przy czym nie ma pewności, czy obecny podział oraz forma sklepień mają charakter pierwotny.
Chronologia: ceglana wieża mieszkalna z XIII w., przebudowywana w XVII w., a w XVIII w. wkomponowana w założenie pałacowe.
Literatura
Konkretne wzmianki (wybór): SUb II, nr 89; SUb III, nr 588; SUb VI, nr 470; RS 2878, 2905, 2986, 3078, 3126, 3396, 3403, 3404, 3438, 3475, 4208, 4800, 4818, 5409, 5507, 5618, 5876, 6496; RŚl II, nr 923; RŚl III, nr 414; RŚl IV, nr 443, 465; RŚl V, nr 220; APWr., AmW, sygn. B 89,4, fol. 37, 106, 111v, 112, 113, 122v, 127v, 128v, 144v, 158v, 159v, 167.
APW WSPŚ lub APWr = Archiwum Państwowe we Wrocławiu, Wydział Samorządowy Prowincji Śląskiej Technical Report
0000.
RŚl V = Regesty śląskie. T. V, 1360 Bachelor Thesis
Wrocław, 1992.
CDS XVI = Codex Diplomaticus Silesiae, Regesten zur Schlesischen Geschichte, Bd. XVI: 1301-1315 (RS nr 2616-3542) Collection
Breslau, 1892, (używany również skrót 'RS' lub 'RSIV').
CDS XVIII = Codex Diplomaticus Silesiae, Regesten zur Schlesischen Geschichte, Bd. XVIII: 1316-1326 (RS nr 3542-4599) Collection
Breslau, 1898, (używany również skrót 'RS' lub 'RS V').
CDS XXII = Codex Diplomaticus Silesiae, Regesten zur Schlesischen Geschichte, Bd. XXII: 1327-1333 (RS nr 4600-5278) Collection
Breslau, 1903, (używany również skrót 'RS').
CDS XXIX = Codex Diplomaticus Silesiae, Regesten zur schlesischen Geschichte, Bd. XXIX: 1334-1337 (RS nr 5279-6020) Collection
Breslau, 1923, (używany również skrót 'RS').
CDS XXX = Codex Diplomaticus Silesiae, Regesten zur schlesischen Geschichte 1338-1342, Bd. XXX (RS nr 6021-6988) Collection
Breslau, 1925.
SUb II = Schlesisches Urkundenbuch. Bd. II: 1231-1250 Collection
Köln-Graz-Wien, 1977.
SUb III = Schlesisches Urkundenbuch. Bd. III: 1251-1266 Collection
Köln, 1984.
SUb VI = Schlesisches Urkundenbuch. Bd. VI: 1291-1300 Collection
Köln, 1998.
RŚl II = Regesty śląskie. T. II, 1349-1354 Collection
Wrocław, 1983.
RŚl III = Regesty śląskie. T. III, 1355-1357 Collection
Wrocław, 1990.
RŚl IV = Regesty śląskie. T. IV, 1358-1359 Collection
Wrocław-Warszawa, 1992.
Ilustracje











![WRONÓW, st. 1, model cieniowanego reliefu stanowiska (oprac. M. Legut-Pintal, Katalog Zamków i Dworów Obronnych Śląska [https://zamki.pwr.edu.pl/]. Licencja: CC BY-NC 4.0 [https://creativecommons.org/licenses/by-nc/4.0/])](https://zamki.pwr.edu.pl/wp-content/uploads/2026/01/3_wronow_100_kolor-300x224.png)

![BIESTRZYKÓW, widok dworu od strony północnej (fot. D. Nowakowski , Katalog Zamków i Dworów Obronnych Śląska [https://zamki.pwr.edu.pl/]. Licencja: CC BY-NC 4.0 [https://creativecommons.org/licenses/by-nc/4.0/])](https://zamki.pwr.edu.pl/wp-content/uploads/2025/12/Biestrzykow-ryc.-8-300x199.jpg)