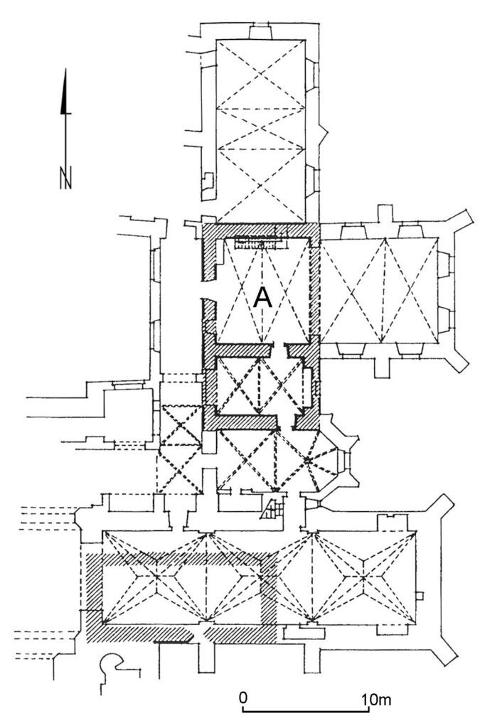
Zamek księcia Przemka żagańskiego z 4 ćwierci XIII wieku zlokalizowany był w północnym narożniku miasta lokacyjnego, na wysuniętym cyplu ograniczonym od południa korytem Młynówki, a od północy stromym zboczem. Założenie najpewniej funkcjonowało w obrębie umocnień miejskich, a około 30 m na południowy zachód od niego, na niewielkim wyniesieniu, znajdował się kościół NMP. Przekazy pisane poświadczają obecność zabudowy murowanej i drewnianej, a relikty kamiennej budowli (ok. 9 × 16,5 m), interpretowanej jako wieża z dwoma pomieszczeniami w dolnej kondygnacji, zachowały się w obrębie murów obecnej zakrystii.
| Lokalizacja | woj. lubuskie, pow. żagański, gm. Żagań |
|---|---|
| Współrzędne | 51.616357, 15.318368 |
| Obszar AZP | 69-12 |
| Chronologia | pełne średniowiecze |
| Autorzy | Dominik Nowakowski |
| Data udostępnienia | 29.12.2025 |

Jak cytować?
Opis
Przynależność administracyjna i toponomastyka
- Współczesna: gmina Żagań, pow. żagański, woj. lubuskie.
- Historyczne jednostki administracyjne: księstwo żagańskie.
- Nazwy historyczne: Żagań (niem. Sagan)
Kontekst przestrzenny, rozplanowanie, stan zachowania obiektu
Stanowisko położone jest w północnym narożniku miasta lokacyjnego, na wysuniętym cyplu ograniczonym od południa korytem Młynówki, a od północy stromym zboczem. Stan. 10, AZP 16/69-12.
Wybór źródeł do dziejów miasta i zamku
- 1272 – wzmiankowany archiprezbiter żagański Peczold de Sprotauia (SUb, IV, 170)
- 1273 – wzmiankowany proboszcz (SUb, IV, nr 201, 202)
- 1284 – książę Przemko przeniósł do Żagania augustianów z Nowogrodu Bobrzańskiego (SUb, V, nr 87)
- 1284 – sędzia Marcin (SUb, V, nr 80)
- 1285 – poświadczony konwent i dom franciszkanów (SUb, V, nr 181, 233)
- 1286 – wzmiankowany landwójt i sołtys (SUb, V, nr 301)
- 1296 – kasztelan Pezmanno Heselech (SUb, VI, nr 270)
- 1299 – Konrad II żagański oddał augustianom dom drewniany i murowany (domum lapideam et ligneam), które zbudował książę Przemko, oraz plac w pobliżu kościoła NMP (SUb, VI, nr 404)
- 1486 – pożar zniszczył zabudowania klasztorne (Heinrich 1911, s. 304, 520)
Historia budowlana obiektu
Najstarszy zamek w Żaganiu zbudowany został prawdopodobnie w obrębie umocnień miejskich. Około 30 m na południowy zachód od niego, na niewielkim wyniesieniu, znajdował się kościół NMP. Pierwotnie w skład zabudowań zamkowych wchodziły poświadczone przekazami pisanymi obiekty murowane i drewniane. Relikty kamiennej budowli o wymiarach około 9 × 16,5 m, zapewne wieży z dwoma pomieszczeniami w dolnej kondygnacji, zachowały się w obrębie murów obecnej zakrystii.
Chronologia: zamek księcia Przemka żagańskiego z 4 ćw. XIII w.
Literatura
Konkretne wzmianki (wybór): SUb IV, 170; SUb IV, nr 201, 202; SUb V, nr 80, 87, 181, 233, 301; SUb VI, nr 270, 404; Heinrich 1911, s. 304, 520; Guerquin 1957, s. 87–88; Guerquin 1984, s. 343; Szczegóła 1970, s. 518–519; Kowalski 1976, s. 278, 282; Kowalski 1987, s. 237, 240; Peryt-Gierasimczuk 1998, s. 254; Kąsinowski 1999, s. 266; Kajzer, Kołodziejski, Salm 2001, s. 564; Lewczuk 2001, s. 169; Nowakowski 2008, s. 414–415; Kowalski 2010, s. 438–439.
Zamki śląskie Book
Warszawa, 1957.
Zamki w Polsce Book
Warszawa, 1984.
Geschichte des Fürstentums Sagan. Bd. 1 Book
Sagan, 1911.
Leksykon zamków w Polsce Book
Warszawa, 2001.
Sprawozdanie z badań architektonicznych Book Chapter
In: Kowalski, S. (Ed.): Klasztor augustianów w Żaganiu – zarys dziejów, Zielona Góra, 1999.
Zabytki architektury województwa Lubuskiego Book
Zielona Góra, 2010.
Zabytki Środkowego Nadodrza. Katalog architektury i urbanistyki Book
Zielona Góra, 1976.
Zabytki województwa zielonogórskiego Book
Zielona Góra, 1987.
Perspektywy badań nad późnym średniowieczem i okresem wczesnonowożytnym w południowej części Środkowego Nadodrza Journal Article
In: Silesia Antiqua, vol. 42, pp. 149–176, 2001.
Siedziby książęce i rycerskie księstwa głogowskiego w średniowieczu Book
Wrocław, 2008.
Czas architekturą zapisany. Zabytki województwa zielonogórskiego Book
Zielona Góra, 1998.
SUb V = Schlesisches Urkundenbuch. Bd. V: 1282-1290 Collection
Köln-Weimar-Wien, 1993.
SUb VI = Schlesisches Urkundenbuch. Bd. VI: 1291-1300 Collection
Köln, 1998.
SUb IV = Schlesisches Urkundenbuch. Bd. IV: 1267-1281 Collection
Köln-Weimar-Wien, 1988.
Żagań Book Chapter
In: Kaczmarczyk, Z.; Wędzki, A. (Ed.): Studia nad początkami i rozplanowaniem miast nad środkową Odrą i dolną Wartą (województwo zielonogórskie), vol. 2, Zielona Góra, 1970.
Ilustracje












![PRZEWÓZ, widok na wieżę, 2024 (fot. R. Biel, Katalog Zamków i Dworów Obronnych Śląska [https://zamki.pwr.edu.pl/]. Licencja: CC BY-NC 4.0 [https://creativecommons.org/licenses/by-nc/4.0/])](https://zamki.pwr.edu.pl/wp-content/uploads/2024/08/przewoz-38-300x169.jpg)
