Murowany dwór w Dobrej wzniesiono na kopcu położonym wśród podmokłych łąk, w zakolu rzeki Dobrej. Założenie od początku zaplanowano jako okazały dom na planie prostokąta z narożną, owalną wieżą, co potwierdza przewiązanie murów i jednolite techniki budowlane. Badania archeologiczno-architektoniczne pozwoliły wydzielić trzy fazy: budowę w XVI wieku, gruntowną przebudowę z końca 1 tercji XVII wieku oraz przekształcenia z początku XX wieku.
| Lokalizacja | woj. dolnośląskie, pow. oleśnicki, gmina Dobroszyce |
|---|---|
| Współrzędne | 51.248889, 17.310000 |
| Obszar AZP | 77-31 |
| Chronologia | nowożytność |
| Autorzy | Dominik Nowakowski |
| Data udostępnienia | 25.12.2025 |

Jak cytować?
Opis
Przynależność administracyjna i toponomastyka
- Współczesna: gmina Dobroszyce, pow. oleśnicki, woj. dolnośląskie.
- Historyczne jednostki administracyjne: księstwo oleśnickie.
- Nazwy historyczne: Dobra (niem. Döberle/Karlsburg), zapisy: 1201–1253 – Nadobre, Dobra i in.
Kontekst przestrzenny, rozplanowanie, stan zachowania obiektu
Wśród podmokłych łąk, w zakolu rzeki Dobra, ok. 50 m na południe od dawnego majątku. Dwór wzniesiono centralnie na kopcu o kształcie nieregularnego czworoboku (ok. 45–50 × 70–75 m), wyniesionym na 2–3 m ponad otoczenie. Od zachodu kopiec przylega do terenu zalewowego rzeki i dopływu, natomiast od północy i wschodu do suchej, wyniesionej części ostrogi terenowej, od której pierwotnie odcinała go mokra fosa połączona z rozległym stawem.
Wybór źródeł do dziejów miejscowości i dóbr ziemskich
- 1149 – wieś Dobra przekazana wrocławskiemu klasztorowi św. Wincentego (SUb, I, nr 19)
- 1201–1253 – wieś Nadobre, Dobra wśród posiadłości klasztoru św. Wincentego (SUb, I, nr 75, 95; III, nr 89)
- 1349 – ławnik oleśnicki Jeszko de Dobra (RŚl, II, nr 59)
- 1467 – Jakusz Redlitz otrzymał folwark Klein Doberlein z młynem i stawem, które wcześniej należały do Jerzego Froberga (Haeusler 1883, s. 394)
- 1480 – młyn we wsi Dobirley posiadała Marta Borschnitz, wdowa po Konradzie Oslaw (Haeusler 1883, s. 394)
- 1483 – księżna oleśnicka Małgorzata potwierdziła, że Konrad Oslaw zastawił Krzysztofowi Thaderowi karczmę we wsi (APWr., Rep. 132c, Dep. ks. oleśnickiego, nr 145)
- 1736 – Carlsburg/Döberle (SENG, II, s. 118)
Historia budowlana obiektu
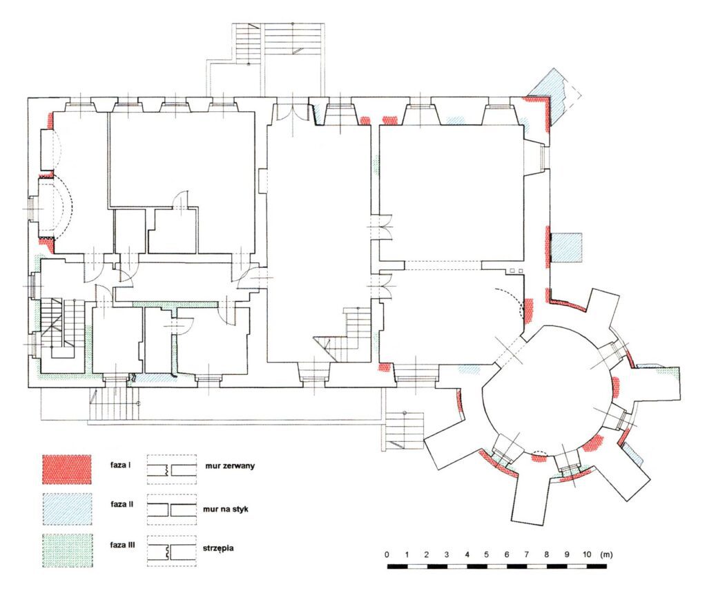
Faza I – budowa dworu z narożną wieżą (XVI w.)
Murowany dwór w Dobrej zbudowano w centralnej części kopca, który w rzucie poziomym ma kształt nieregularnego czworoboku o bokach długości ok. 45–50 × 70–75 m i jest wyniesiony 2–3 m ponad otaczający teren. Od strony zachodniej kopiec przylega do terenu zalewowego rzeki Dobrej i jej dopływu, natomiast od północy i wschodu do suchej, wyniesionej części ostrogi terenowej; pierwotnie obiekt odcięty był mokrą fosą połączoną z rozległym stawem.
Budynek dworu wzniesiono na planie prostokąta o wymiarach 26,2 × 14,5 m, z dłuższą osią na linii wschód–zachód. W narożniku południowo-wschodnim znajduje się owalna wieża o średnicy ok. 9,5 m, wzmocniona pięcioma przyporami. Badania architektoniczne wykazały, że dwór od początku zaplanowano jako okazały dom z narożną wieżą, o czym świadczy jednakowa grubość murów obwodowych (1,25–1,3 m), zastosowanie tych samych materiałów i technik budowlanych oraz przewiązanie ścian.
Wieżę oraz mury obwodowe budynku do wysokości ok. 1,5–1,7 m ponad obecną posadzką wykonano z eratyków i fragmentów cegieł, natomiast partie wyższe z cegły. Z cegieł wykonano również sklepienia, ściany działowe oraz obramienia otworów w murach kamiennych. Na poziomie piwnic znajdowało się pięć pomieszczeń: jedno w wieży, nakryte kopułą, oraz cztery w budynku, przesklepione kolebkami. Układ przestrzenny parteru był zapewne odmienny niż w piwnicach.
Faza II – gruntowna przebudowa nowożytna (koniec 1 tercji XVII w.)
W drugiej fazie dwór gruntownie przebudowano. Wzniesiono wówczas pierwsze i drugie piętro wieży, którą równocześnie oskarpowano. Skarpami wzmocniono także co najmniej ścianę wschodnią korpusu, w tym przekątnie podpierając narożnik północno-wschodni. W tej fazie wykonano również obecne wejście w ścianie północnej budynku.
Faza III – przekształcenia z początku XX wieku
W fazie datowanej na początek XX wieku przemurowano mury wieży i podparto ją masywnymi skarpami. Założono klatkę schodową w narożniku południowo-zachodnim budynku oraz wzniesiono od nowa południowy odcinek ściany szczytowej i zachodnią ścianę boczną. W piwnicach i na parterze wydzielono kilka niewielkich pomieszczeń; ścianka działowa wyodrębniająca salę wschodnią powstała właśnie w tej fazie. Przeprowadzono również renowację dekoracji sgraffitowej.
Podczas badań archeologiczno-architektonicznych pozyskano fragmenty ceramiki oraz kafli piecowych, datowane na XVI–XVII wiek.
Chronologia: na podstawie użytych materiałów oraz technik budowlanych wyróżniono trzy fazy chronologiczne dworu: I – budowa dworu z cegieł formatu gotyckiego układanych w wątku jednowozówkowym na zaprawie wapiennej z dużą ilością grudek wapna; odkryte materiały archeologiczne pozwalają ograniczyć ramy chronologiczne tej fazy do XVI w.; II – pierwsza przebudowa dworu, podczas których powstały mury z cegieł ułożonych w wątku niderlandzkim, datowane na koniec 1 tercji XVII w.; III – mury z cegły maszynowej na zaprawie cementowej z pocz. XX w.
Literatura
Konkretne wzmianki (wybór): SUb I, nr 19, 75, 95; SUb III, nr 89; RŚl II, nr 59; Haeusler 1883, s. 394; APWr., Rep. 132c, Dep. ks. oleśnickiego, nr 145; SENG II, s. 118; Hellmich 1930, s. 41; Bimler 1942, s. 31–32; Kaletyn 1962, s. 285; Antoniewicz, Wartołowska 1964, s. 32; Pawłowski 1978, s. 222–223; Kaletyn 1980, s. 256; Katalog zabytków sztuki… 1983, s. 32; Piekalski, Żurek 1993, s. 166; Lasota et al. 1999; Nowakowski 2017, s. 291; Dąbrowski 2024, s. 68–71.
Mapa grodzisk w Polsce Journal Article
In: Wrocław, pp. 29, 1964.
APW WSPŚ lub APWr = Archiwum Państwowe we Wrocławiu, Wydział Samorządowy Prowincji Śląskiej Technical Report
0000.
Die schlesischen Massiven Wehrbauten, Bd. III: Fürstentum Oels-Wohlau Book
Breslau, 1942.
Zamki, pałace i dwory Dolnego Śląska. Powiat oleśnicki Book
Warszawa, 2024.
Geschichte des Fürstenthums Oels bis zum Austerben der Piastischen Herzogslinie Book
Breslau, 1883.
Schlesische Wehranlagen Journal Article
In: Altschlesien, vol. 3, pp. 40–41, 1930.
Sprawozdanie z działalności w zakresie ochrony i ratownictwa zabytków archeologicznych w 1978 r. na obszarze województwa jeleniogórskiego Journal Article
In: Silesia Antiqua, vol. 22, pp. 191–196, 1980.
KZS IV/4 = Oleśnica, Bierutów i okolice. Katalog zabytków sztuki w Polsce, tom IV Book
Warszawa, 1983.
Dwór w Dobrej k. Oleśnicy. Wyniki ratowniczych badań archeologiczno-architektonicznych Technical Report
Wojewódzki Urząd Ochrony Zabytków Wrocław, 1999, (Maszynopis w archiwum WUOZ Wrocław).
Śląskie obiekty typu motte. Studium archeologiczno-historyczne Book
2017.
Grody stożkowate, ostrosłupowe i wieże mieszkalno-obronne na Śląsku w średniowieczu PhD Thesis
KHASiT Politechniki Wrocławskiej, 1978.
Ze studiów nad siedzibami obronnymi północno-wschodniego pogranicza Śląska w XIII-XVII w. Journal Article
In: Studia Archeologiczne, vol. t. 24, pp. 176, 1993.
Wrocław: sprawozdanie z działalności archeologicznej służby konserwatorskiej na terenie województwa wrocławskiego w 1960 roku Journal Article
In: Silesia Antiqua, vol. 4, pp. 276-288, 1962.
SUb I = Schlesisches Urkundenbuch. Bd. I: 971-1230 Collection
Köln, 1963.
SUb III = Schlesisches Urkundenbuch. Bd. III: 1251-1266 Collection
Köln, 1984.
RŚl II = Regesty śląskie. T. II, 1349-1354 Collection
Wrocław, 1983.
Ilustracje

















