Obiekt w Lubinie zbudowano na niewielkim, naturalnym wyniesieniu, otoczonym terenem podmokłym, nieco na południowy wschód od miasta lokacyjnego. Najstarszym elementem tego zamku jest wieża, położona w północnym narożniku dziedzińca. Budowla ta, zachowana jedynie w partiach fundamentowych, została wzniesiona z kamienia na planie czworoboku o wymiarach 10,5 x 13 m.
| Lokalizacja | woj. dolnośląskie, pow. lubliński, gm. Lubin |
|---|---|
| Współrzędne | 51.396111 N, 16.208333 E |
| Obszar AZP | 73-21 |
| Chronologia | pełne średniowiecze, późne średniowiecze |
| Autorzy | Dominik Nowakowski |
| Data udostępnienia | 22.12.2023 |
Jak cytować?
Zdjęcia, ryciny, ilustracje, plany, przekroje, etc. – jak w podpisach
Opis
Przynależność administracyjna
Obecna: Lubin II (niem. Lüben) gm. loco, pow. loco, woj. dolnośląskie; stan. nr 79, AZP 85/73-21
Przynależność historyczna: księstwo głogowskie, księstwo ścinawskie, księstwo legnicko-brzeskie
Lokalizacja
Na niewielkim, naturalnym wyniesieniu, otoczonym terenem podmokłym, nieco na południowy wschód od miasta lokacyjnego.
Wybór źródeł do dziejów miejscowości i dóbr ziemskich:
- 1298 – wzmiankowany landwójt Albert (SUb, VI, nr 375)
- 1299 – Konrad żagański wystawił dokument w civitatis Lubin (SUb, VI, nr 412)
- 1299 – kasztelan Bertold (SUb, VI, nr 474)
- 1298-1314 – kasztelan Marek de Panko (SUb, VI, nr 359, 391, 412)
- 1312 – podział księstwa głogowskiego, miasto z zamkiem [castrum] przejął Jan ścinawski (LuBS, I, s. 120-122)
- 1319 – wzmiankowany książęcy las olchowy położony za zamkiem [Schlosse] (RS 3910)
- 1324 – Jan ścinawski wystawił dokument na zamku [castrum] w Lubinie, świadkował burgrabia Nikosz (RS 4381)
- 1329 – Jan ścinawski przekazał księstwo w lenno Janowi Luksemburskiemu (LuBS, I, s. 129)
- 1332 – sędzia dworski Mikołaj Borceborc (RS 5142)
- 1335 – układ między księciem Janem ścinawskim, a królem Janem Luksemburskim i margrabią Karolem w sprawie jego ziem, wymieniony zamek [castrum] w Lubinie (LuBS, I, s. 138)
- 1337 – Jan Luksemburski oddał miasto z zamkiem [castrum] w zastaw Bolesławowi legnickiemu (LuBS, I, s. 309)
- 1339 – Jan i Karol Luksemburscy sprzedali miasto z zamkiem [castrum] Bolesławowi legnickiemu (LuBS, I, s. 313-314; RS 6330)
- 1343 – książęta legnicko-brzescy Wacław i Ludwik oddali swoje ziemie, w tym Lubin, w lenno Janowi Luksemburskiemu (LuBS, I, s. 321)
- 1345-1348 – miasto należało do Wacława I legnickiego (Müller 1837, s. 257)
- 1348-1398 – miasto należało do Ludwika I legnicko-brzeskiego (Müller 1837, s. 257)
- 1359 – podział posiadłości książąt legnicko-brzeskich Wacława i Ludwika, miasto Lubin z zamkiem [haus] i okręgiem przejął Ludwik (LuBS, I, s. 339)
- 1358-1360: sędzia dworski Piotr Lemberg (RŚl, IV, nr 313, 359; V, 38)
- 1396 – książę Henryk brzeski jako pan Lubina (LuBS, I, s. 350)
- 1400 – podział posiadłości książąt brzeskich, Lubin otrzymał Henryk (LuBS, I, s. 352)
- 1402-1423: starosta Luter Lemberg (Kd, IX, 10, 172)
- 1406 – wzmiankowany kościół zamkowy (Kd, IX, 47)
- 1416 – sędzia dworski Mikołaj Swad (Kd, IX, 108)
- 1420 – Lubin otrzymał książę Ruprecht legnicki (LuBS, I, s. 366)
- 1424 – książę Ludwik jako pan Lubina (LuBS, I, s. 369)
- 1428 – miasto i zamek oblegały wojska husyckie (Müller 1837, s. 257)
- 1430 – Szymon Geyseler starosta i sędzia dworski (Kd, IX, 254)
- 1443 – starosta Gunczel Landeskron (Kd, IX, 366)
- 1445 – książęta Jan i Henryk X jako panowie Brzegu, Chojnowa i Lubina (LuBS, I, s. 397)
- 1446 – książęta Jan i Henryk X sprzedali miasto z zamkiem [slos] Henrykowi IX głogowskiemu (LuBS, I, s. 398)
- 1449 – sędzia dworski Baltazar Goren (Kd, IX, 430)
- 1469 – Maciej Korwin zhołdował księcia Fryderyka I legnicko-brzeskiego z jego ziem, w tym z Lubina (LuBS, I, s. 452)
- 1469-1475 – starosta Melchior Goren (CDS, XXIV, s. 107, 111; CDS, XXVIII, s. 117, 119; LuBS, I, s. 207)
- 1482-1496 – Lubin należał do księżnej głogowskiej Katarzynyj (LuBS, I, s. 456, 461-464; CDS XXVIII, s. 242)
- 1492 – świadectwo przynależności Lubina do księstwa legnickiego, wymieniona ziemia lubińska, miasto i zamek [schlos] (LuBS, I, s. 463)
- 1492 – sędzia dworski Jan Gonczel (Kd, IX, 810)
- 1496 – układ na mocy którego księżna legnicka Ludmiła miała wykupić od księżnej Katarzyny, pani na Lubinie, za 5400 guldenów okręg lubiński z miastem i zamkiem [schlosz] (LuBS, I, s. 464-467)
- 1502 – Władysław Jagiellończyk zhołdował księstwo legnicko-brzeskie, do którego należał Lubin (LuBS, I, s. 467-468)
- 1504 – miasto z zamkiem [slowβ] po podziale ziem przejął książę legnicki Jerzy (LuBS, I, s. 468-471)
- 1514 – starosta Bernard Magnus (LuBS, I, s. 478)
Opis obiektu
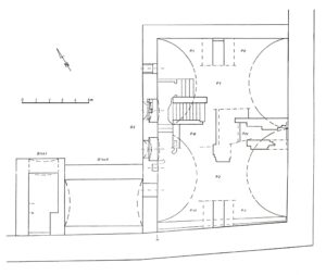
Najstarszym elementem tego zamku jest wieża, położona w północnym narożniku dziedzińca. Budowla ta, zachowana jedynie w partiach fundamentowych, została wzniesiona z kamienia na planie czworoboku o wymiarach 10,5 x 13 m. Jednym z argumentów sugerujących, że wieża pierwotnie stanowiła samodzielną konstrukcję, jest fakt uchwycenia poziomu calcowego przy jej fundamencie na głębokości 2 m, podczas gdy w innych miejscach wykopów sięga ona 3-4 m. Dodatkowo, odkrycie warstwy namuliskowej w wykopach I i II wskazuje na podmokły charakter terenu wokół wieży w momencie jej powstania. Wizualizację architektoniczną wieży przedstawia rycina F. B. Wernera, na której widoczne są czworoboczne kształty wieży z blankami oraz dwa poziome okna, co odpowiada górnym kondygnacjom. Pomimo że parter jest niewidoczny na rycinie, przypuszcza się, że wieża miała trzy kondygnacje nadziemne, a być może także piwnicę.
W połowie XIV wieku, zamek został poddany przebudowie, która nadała mu plan w miarę regularnego czworoboku o powierzchni około 1500 m². Rozebrano pierwotny mur obwodowy i postawiono nowy z budynkiem bramnym, kaplicą w narożniku zachodnim oraz budynkiem w narożniku południowym. Pierwszym etapem tej rozbudowy było wzniesienie muru obwodowego, a potem nawieziono ziemię z gliną na dziedziniec, podwyższając go i wyrównując. Warto zauważyć, że brak jest śladów fundamentów wewnętrznych murów obwodowych, co sugeruje, że zamek został pierwotnie wzniesiony w odwrotnej kolejności.
Mur obwodowy został zbudowany z kamieni narzutowych i większych kamieni w układzie warstwowym, na zaprawie wapiennej, z gruzem ceglanym stosowanym w spoinach. Kaplica, założona jako budowla prostokątna przylegająca do muru obwodowego, była połączona z budynkiem bramnym. Budynek bramny wyróżniał się jednym piętrem nad przejazdem, przekrytym ostrołucznie sklepieniem. Było możliwe przejście z tego budynku na emporę kaplicy, co potwierdzają zamurowane arkady widoczne na fasadzie północnej kaplicy. Wykopaliska ujawniły również fundament muru łączącego wieżę z murem obwodowym.
Zamek był wielokrotnie przebudowywany i niszczony w trakcie różnych wydarzeń historycznych, w tym w 1641 roku podczas wojny trzydziestoletniej. W drugiej połowie XVIII wieku kaplica nadal była używana, ale część zamku została rozebrana w celu pozyskania materiałów budowlanych. W drugiej połowie XIX wieku na terenie zamku wzniesiono nowe budynki, które stały się siedzibą ówczesnego urzędu powiatowego. Wieża, datowana na przełom XIII i XIV wieku lub początek XIV wieku, była najstarszym elementem zamku. W połowie XIV wieku została przebudowana z inicjatywy Ludwika I brzeskiego, a cały zamek zyskał obecny kształt jako regularny czworobok.
Zobacz też
Ilustracje
Ilustracje









Literatura
Wzmianki konkretnie o tym obiekcie
Müller 1837, s. 1-2; Silesia 1841, s. 24-30; Lutsch 1891, s. 11-12; Klose 1924, s. 24-30; Uhtenwoldt 1938, s. 11-12; Bimler 1943, s. 24-30; Guerquin 1957, s. 1-2; Guerquine 1984, s. 24-30; Pilch 1962, s. 11-12; Pilch 1978, s. 24-30; Przyłęcki 1965, s. 1-2; Karłowska-Kamzowa 1970, s. 24-30; Niemczyk 1974, s. 11-12; Medeksza 1980, s. 24-30; Grundmann 1982, s. 1-2; Grzybkowski 1990, s. 24-30; Matwijowski 1996, s. 11-12; Mularczyk 1999, s. 24-30; Kajzer 2001, s. 1-2; Nowakowski 2008, s. 24-30
Burgen, Schlösser und Gutshäuser in Schlesien, Bd. 1. Die mittelalterlichen Burgruinen und Wohntürme Book
Frankfurt am Main, 1982.
Średniowieczne kaplice zamkowe Piastów śląskich (XII-XIV wiek) Book
Warszawa, 1990.
Zamki śląskie Book
Warszawa, 1957.
Zamki w Polsce Book
Warszawa, 1984.
Leksykon zamków w Polsce Book
Warszawa, 2001.
Fundacje artystyczne księcia Ludwika I brzeskiego Book
Opole, 1970.
Beiträge zur Geschichte der Stadt Lüben Book
Lüben, 1924.
Verzeichnis der Kunstdenkmäler der Provinz Schlesien. Bd. III: Die Kunstdenkmäler des Regierungsbezirk Liegnitz Book
Breslau, 1891, (Borów Polski, s. 70-71;).
Lubin. Zarys rozwoju miasta na przestrzeni wieków Book
Wrocław-Lubin, 1996.
Wyniki badań architektoniczno-archeologicznych i problematyka konserwatorska ruin zamku w Lubinie Journal Article
In: Prace Naukowe IHASiT Politechniki Wrocławskiej, no. 13, pp. 94, 1980.
Die schlesischen Lokationsurkunden des 13. Jahrhunderts Book
Würzburg, 1978.
Sprawozdanie z przeprowadzonych prac ziemnych w obrębie zabudowań zamku (rezydencji) w Lubinie Technical Report
Lubin, 1999, (maszynopis w WUOZ Wrocław, delegatura w Legnicy).
Vaterländische Bilder, in einer Geschichte und Beschreibung der alten Burgfesten und Ritterschlösser Schlesiens (beider Antheile) so wie der Grafschaft Glatz Book
Glogau, 1844.
Z badań archeologiczno-architektonicznych zamku w Lubinie Journal Article
In: vol. 8, pp. 227-229, 1974.
Siedziby książęce i rycerskie księstwa głogowskiego w średniowieczu Book
Wrocław, 2008.
Zabytki Dolnego Śląska Book
Wrocław-Warszawa-Kraków, 1962.
Zabytki architektury Dolnego Śląska Book
Wrocław, 1978.
Zabytki Lubina Legnickiego Journal Article
In: Szkice Legnickie, vol. 2, pp. 86-88, 1965.
Silesia, oder Schlesien in historischer, romantischer und malerischer Beziehung Book
Glogau, 1841.
CDS XXVIII = Codex Diplomaticus Silesiae, Die Inventare der nichtstaatlichen Archive Schlesiens. Kreis und Stadt Glogau, Bd. XXVIII Collection
Breslau, 1915, (Inv. Glog. ).
LuB 1 = Lehns- und Besitzurkunden Schlesiens und seiner einzelnen Fürstenthümer im Mittelalter, Bd. 1 Collection
Leipzig, 1881, (Publicationen aus den königlichen preußischen Staatsarchiven Bd. 7; alternatywne skróty: LuBS, LBuS).
SUb VI = Schlesisches Urkundenbuch. Bd. VI: 1291-1300 Collection
Köln, 1998.
Die Burgverfassung in der Vorgeschichte und Geschichte Schlesiens Book
Breslau, 1938.
CDS XXIV = Codex Diplomaticus Silesiae, Die Inventare der nichtstaatlichen Archive Schlesiens. Die Kreise Grünberg und Freistadt, Bd. XXIV Bachelor Thesis
1908, (Inv. Grünb.).
RŚl IV = Regesty śląskie. T. IV, 1358-1359 Collection
Wrocław-Warszawa, 1992.












