Dwór w Jaźwinie górnej to rycerski dwór na kopcu z ruiną murowanej wieży mieszkalnej z XIV w. Przekształcona w początkach XVI w. w obszerny dwór na planie zwartym, otoczony suchą fosą i dostępny przez zwodzony mostek. Na jego elewacji znajdowała się reliefowa płyta epitafium (?) z motywem Tronu Łaski, skradziona w latach 90. XX w.
| Lokalizacja | woj. dolnośląskie, pow. dzierżoniowski, gm. Łagiewniki |
|---|---|
| Współrzędne | 50.7990878 N, 16.6815619 E |
| Obszar AZP | 86-25 |
| Chronologia | późne średniowiecze, nowożytność |
| Autorzy | Piotr Błoniewski, Małgorzata Chorowska |
| Data udostępnienia | 23.11.2023 |

Jak cytować?
Zdjęcia, ryciny, ilustracje, plany, przekroje, etc. – jak w podpisach
Opis
Przynależność administracyjna
- od 1296 r. w granicach księstwa świdnickiego; do 1741: w obrębie weichbildu dzierżoniowskiego; 1741-1932: Kreis Reichenbach, 1932-1945: Landkreis Breslau; 1975-1978 woj. wałbrzyskie
- historyczne nazwy miejscowości: 1300 Siffrisdorf; 1340 Syffredisdorff; 1374 Grossen Seifridisdorff; 1677 Seiffersdorff; 1726 Nieder-, Lang Seyffersdorff; 1845 Langen-, Nieder Seifersdorf, Seiberschdorf; 1871 Ober – Langseifersdorf; w 1945 Stoszyn; od 1947 Jaźwina
- historyczne nazwy majątku: Gut (brak nazwy własnej).
Kontekst przestrzenny, rozplanowanie, stan zachowania obiektu
Wieś Jaźwina została odnotowana po raz pierwszy w 1305 r. (CDS XIV, B 514). Jest to bardzo długa wieś łanowa, położona na lekko pofałdowanym terenie na południe od góry Raduni w Masywie Ślęży. Kościół parafialny wymieniony został w 1335 r. We wsi, podzielonej dawniej na Jaźwinę Górną, Średnią i Dolną, najpóźniej pod koniec XIV w. powstały dwie siedziby rycerskie – dolna (wschodnia) i górna – zachodnia.
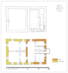
Górny zespół pałacowo-folwarczny znajduje się w wyżej położonej, zachodniej części wsi, w znacznej odległości od kościoła parafialnego, co wskazuje na polokacyjną genezę tutejszej siedziby. Założono ją na miejscu wyniesionym, na sztucznie usypanym kopcu i otoczono suchą fosą. Obszerny, trójskrzydłowy folwark został usytuowany dookoła starszego dworu, który otoczył z 3 stron. Dwór zachowany w stanie ruiny – bez dachu i stropów; sklepienie piwnicy częściowo zawalone. Kamieniarka wyrabowana.
Dzieje własności dóbr ziemskich i obiektu na podstawie przyczynków źródłowych
- majątek górny pozostawał w rękach rodziny von der Heyde co najmniej od 2 połowy XV w. do około połowy XVIII w.: 1469 Hans von der Heyde, 1550 – Franz i Wolf von der Heide, 1602 – Wolf von der Heyde, 1626 – Hans von der Heide, 1663 – Hans Wolfram von der Heide, 1697 – Konrad von der Heide, 1749 – Justizrath von der Heide, 1769-1779, 1785 – własność NN von Schweiniz żonatego z Dorotheą Elisabeth von Schweinitz, z domu von der Heide (APWr Rritterdienste 1550; APWr Rritterdienste 1602; ZIMMERMANN 1785, s. 179; TREBLIN 1908, s. 123)
- od 1815 do 1926 – własność rodziny von Prittwitz und Gaffron (KNIE 1830, s. 720, KNIE 1845, s. 629; ANPSA 1857, s. 174; AGPS 1873, I, s. 102-103; SGA 1870/1, s. 50; SGA 1876 (2), s.87; SGA 1886 (3), s. 126; SGA 1894 (5), s. 122; SGA 1898 (6), s, 131; SGA 1902 (7), s. 139; SGA 1905 (8), s. 152; SGA 1909 (9), s, 158; SGA 1912 (10), s. 163; SGA 1917 (11), s. 170; SGA 1921 (12), s. 181; SGA 1926 (13), s. 224)
Stan badań
- Pierwszym badaczem zainteresowanym obiektem był J. Kębłowski, który w latach 60. XX wieku zajął się renesansową rzeźbą.
- W XXI wieku Bogusław Czechowicz zaproponował teorię, że relief z Jaźwiny mógł pierwotnie stanowić epitafium z pobliskiego kościoła.
- Pierwszą inwentaryzację założenia oraz rozwarstwienie chronologiczne murów wykonał na potrzeby doktoratu Piotr Błoniewski (BŁONIEWSKI 2012).
Historia budowlana
FAZA 1 (XV w.)
Najstarszą część założenia stanowiła wieża mieszkalna o wymiarach około 9,50 x 11,80 m, zlokalizowana we wschodniej części obecnego budynku i zajmującą niemal połowę jego planu. Zapewne miała ona 3 kondygnacje. Ściany zostały zbudowane z otoczaków polnych, na gruboziarnistej zaprawie, barwy popielatej, z bardzo dużymi grudami źle zlasowanego wapna. Ich grubość na poziomie pierwszej kondygnacji nadziemnej wynosiła około 93-95cm. Nie znamy lokalizacji wejścia do wnętrza wieży, choć jest prawdopodobne, że prowadziło na parter, podwyższony względem obecnego poziomu terenu i znajdowało się w miejscu obecnego. Z I fazy pochodzi również kamienna, przesklepiona kolebkowo piwnica oraz prowadzący do niej dolny fragment tunelu pochylni transportowej, służącej jako pochyły korytarz ułatwiający wtaczanie beczek z piwem. Z pierwotnych otworów okiennych wieżowego dworu widoczne są obecnie trzy – wszystkie w pobliżu pn.-wsch. narożnika budynku. Dwa znajdują się na elewacji północnej, na poziomie I i II piętra wieży i jedno na wschodniej, na poziomie II piętra. Mają formę wąskich, wysokich otworów szczelinowych, przewężonych węgarkami i nakrytych łękiem z cegły palcówki. Obecnie wszystkie trzy są zamurowane (ryc. 10-11).
FAZA 2 (1 poł. XVI w.)
Rozbudowa budynku wieżowego w kierunku zachodnim przyniosła podwojenie jego kubatury. W efekcie powstał obszerny, trójkondygnacyjny dwór na planie zwartym, w typie tzw. kamienicy, mający wymiary u podstawy 11,80 x 18,90 m. Dostęp do wnętrza prowadził od strony południowej przez piaskowcowy portal o lekko zaostrzonym łuku, dwuwklęskowym profilowaniu z przenikającym się laskowaniem, co było dość typowe dla dekoracji schyłku średniowiecza i początków doby nowożytnej. Nad nim została wbudowana reliefowa płyta z datą 1517, która w kontekście portalu tworzyła coś w rodzaj tympanonu. Przedstawiono na niej w półkolistej wnęce motyw Tronu Łaski (tronujący Bóg Ojciec trzyma w ramionach Krzyż Chrystusa; powyżej wyobrażenie Ducha Świętego), a pod spodem dwa herby w pokłonie heraldycznym względem Ukrzyżowanego. Herb po stronie męskiej z lwem kroczącym należał do rodziny von den Heyde, herb po stronie kobiecej – z jeleniem – do jego małżonki. Wprawdzie relief z Jaźwiny reprezentował wysoki poziom artystyczny i mógł pierwotnie stanowić epitafium pochodzące z pobliskiego kościoła, co sugerował Bogusław Czechowicz (KĘBŁOWSKI 1876; CZECHOWICZ 2002, s. 26; CZECHOWICZ 2022, s. 419), lecz jego wtórne (?) wmurowanie w elewację dworu musiało nastąpić równocześnie z osadzeniem portalu, a więc najpóźniej przed 1560 r. Świadczy o tym użycie cegły palcówki o średniowiecznym rozmiarze oraz kształt negatywu, który pozostał po wykradzeniu płyty u schyłku lat 90. XX w. Kradzież ta spowodowała ponadto wypadanie ciosów portalu, które w następnej dekadzie zniknęły z elewacji dworu. Po dalszej destrukcji i odpadnięciu płatów tynku ujawniły się również dwa małe prostokątne otwory, obecnie zamurowane, rozmieszczone symetrycznie względem osi portalu, służące pierwotnie do przeciągania łańcuchów zwodzonego mostu. Most był przerzucony nad suchą fosą. Dodatkowo, po prawej stronie od wejścia odsłoniło się małe okienko.
Młodsza część dworu prawdopodobnie była podpiwniczona, podobnie jak starsza, ponieważ w zachodniej ścianie widnieje zagruzowane wejście do piwnic. Mury tej fazy zostały zbudowane z kamienia z dużym dodatkiem gruzu ceglanego; zaprawa była brązowawa, bardziej żółta niż w I fazie, z dużą ilością kruszywa i piasku.
Kolejne większe przebudowy dworu nastąpiły dopiero w wieku XIX. Możliwe, że upamiętniono je tablicą z datą 1867, wmurowaną w zachodni budynek gospodarczy.
Ilustracje
Mapy i inwentaryzacja






Zdjęcia i ikonografia





Literatura
Średniowieczne dwory w Jaźwinie Journal Article
In: Sudety, vol. 4, no. 150, pp. 8-9, 2015.
Zamki rycerskie w księstwie świdnickim PhD Thesis
Wydział Architektury Politechniki Wrocławskiej, 2013, (praca doktorska napisana na Wydziale Architektury Politechniki Wrocławskiej pod kierunkiem Małgorzaty Chorowskiej, wydruk komputerowy w Centrum Wiedzy i Dokumentacji Naukowo-Technicznej PWr).
Złodziej wie lepiej - późnogotycki relief z poddzierżoniowskiej Jaźwiny Journal Article
In: Sudety, no. 9, pp. 26, 2002.
Idea a państwo. Korona królestwa Czech w latach 1457-1547. t. IV Król i stany, cz. 2. Książęta i szlachta Book
Wrocław, 2022.
Renesansowa rzeźba na Śląsku 1500–1560 Book
1967.
Verzeichnis der Kunstdenkmäler der Provinz Schlesien. Bd. II: Kunstdenkmäler des Regierungsbezirks Breslau Book
Breslau, 1889.
Die Rittergüter und selbständige Gutsbezirke in der Provinz Schlesien Book
Breslau, 1870, („Schlesisches Güter Adressbuch“, 1. Ausgabe).
AGPS = Adressbuch des Grundbesitzes in der Provinz Schlesien dem Areal nach 500 Morgen aufwärts Collection
Berlin, 1873.
ANPSA = Alphabetischer Nachweis (Adressbuch) des in den Preussischen Staaten in den Rittergüttern angesessenen Adels Collection
Berlin, 1857.
Ritterdienste.SJ.1602 lub APWr Ritterdiernste = Ritterdiernste Inn dem Beyden Fürstenthümbern S: u. Jawer [1602] Collection
Wrocław, 1602, (Archiwum Państwowe we Wrocławiu, alternatywnie "APWr Ritterdiernste").
CDS XIV = Codex Diplomaticus Silesiae, Liber Fundationis Episcopatus Vratislaviensis, Bd. XIV Collection
Liber Fundationis Episcopatus Vratislaviensis, Breslau, 1889, (także skrótowo jako LfeV; Lf; LF).
Alphabetisch-Statistisch-Topographische Uebersicht aller Dörfer, Flecken, Städte und andere Orte der Königl. Preuß. Provinz Schlesien, nebst beigefügter Nachweisung von der Eintheilung des Landes nach den verschiedenen Zweigen der Civil-Verwaltung mit drei besondern Tabellen Collection
Breslau, 1830.
Alphabetisch-Statistisch-Topographische Uebersicht aller Dörfer, Flecken, Städte und andere Orte der Königl. Preuß. Provinz Schlesien, nebst beigefügter Nachweisung von der Eintheilung des Landes nach den Bezirken der drei Königlichen Regierungen, den darin enthaltenen Fürstenthümern und Kreisen, mit Angabe des Flächeninhaltes, der mittlern Erhebung über die Meeresfläche, der Bewohner, Gebäude, des Viehstandes u.s.w. Collection
Breslau, 1845.
LANDBUCH II = Landbuch księstw świdnickiego i jaworskiego, tom II: 1385-1395 Collection
Poznań, 2004.
LANDBUCH III = Landbuch księstw świdnickiego i jaworskiego, tom III: 1396-1407 Collection
Poznań, 2007.
RSchweis/Schweinichen I = Zur Geschichte des Geschlechts derer v. Schweinichen, Bd. 1 Collection
Wilh. Gottl. Korn, Breslau, 1904.
SGA = Schlesisches Güter Adressbuch. 1. Ausgabe Collection
Breslau, 1870.
SGA = Schlesisches Güter Adressbuch. 3. Ausgabe Collection
Breslau, 1886.
SGA = Schlesisches Güter Adressbuch. 5. Ausgabe Collection
5. Ausgabe, Breslau, 1894.
SGA = Schlesisches Güter Adressbuch. 6. Ausgabe Collection
6. Ausgabe, Breslau, 1898.
SGA = Schlesisches Güter Adressbuch. 7. Ausgabe Collection
7. Ausgabe, Breslau, 1902.
SGA = Schlesisches Güter Adressbuch. 8. Ausgabe Collection
Breslau, 1905.
SGA = Schlesisches Güter Adressbuch. 9. Ausgabe Collection
9. Ausgabe, Breslau, 1909.
SGA = Schlesisches Güter Adressbuch. 10. Ausgabe Collection
Breslau, 1912.
SGA = Schlesisches Güter Adressbuch. 11. Ausgabe Collection
11. Ausgabe, Breslau, 1917.
SGA = Schlesisches Güter Adressbuch. 12. Ausgabe Collection
12. Ausgabe, Breslau, 1921.
SGA = Schlesisches Güter Adressbuch. 13. Ausgabe Collection
13. Ausgabe, Breslau, 1926.
Beiträge zur Siedlungskunde im ehemaligen Fürstentum Schweidnitz Collection
Breslau, 1908, (Spis majątków rycerskich 1576 r.).
Schlesische Schlösser, Bd .2 Collection
Dresden, Breslau, 1910.
Beiträge zur Beschreibung Schlesien, Bd. IV Collection
1785.











![KĄTKI, widok na pałac od frontu, 2023 (fot. P. Błoniewski , Katalog Zamków i Dworów Obronnych Śląska [https://zamki.pwr.edu.pl/]. Licencja: CC BY-NC 4.0 [https://creativecommons.org/licenses/by-nc/4.0/])](https://zamki.pwr.edu.pl/wp-content/uploads/2025/04/4-Katki-palac-od-frontu-stan-2023-300x135.jpg)
![BRONÓW, ruina pałacu, widok od strony południowej, 2013 rok (fot P. Błoniewski, Katalog Zamków i Dworów Obronnych Śląska [https://zamki.pwr.edu.pl/]. Licencja: CC BY-NC 4.0 [https://creativecommons.org/licenses/by-nc/4.0/])](https://zamki.pwr.edu.pl/wp-content/uploads/2025/01/palac-w-bronowie-300x201.jpg)

